FOR SALE LOT 8
HOUSE & LAND
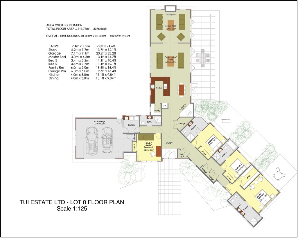
Lot 8 is nestled at the southern end of Tui Estate and faces dead north capturing all day sun. Panoramic, rural and mountain views can be seen from all 3 double ensuite bedrooms, dining, living and formal lounge.
• 2,797 sqft of floor space
• 570 sqft double garage
• Sun drenched luxury kitchen and dining
with spectacular views
• 2 living areas
• 4 double bedrooms, 3 with ensuites
• Separate bathroom
• 2 gas fireplaces
• 2 heatpumps/air conditioners
• Double glazing
• Fully insulated
• High speed internet connection
